客服电话:0517-86994588 

金湖县华升计量仪器有限公司专注与压力、温度、流量、显示等仪表的生产研发!!!

热电偶

点击次数:3087  发布日期:2014/12/01  【打印此页】  【关闭
相关分类
热电偶
耐磨热电偶
耐腐热电偶
专用热电偶
铠装热电偶
装配热电偶
热电阻
装配热电阻
耐磨热电阻
耐腐热电阻
铠装热电阻
双金属温度计
温度变送器
就地温度显示仪
联系我们
 电话:0517-86994588
        83308090 
        83307109 
 传真:0517-86994577  
 邮箱:service@hs-0.com  
 邮编:211600  
 地址:江苏省金湖县工业园区 
 邮编:211600
  • 名称 :热电偶
  • 编号 : SN1417421406
  • 分类 : 热电偶
  • 日期 : 2014-12-01
  • 价格 : 0.00

详细介绍

概述
  在热处理生产中温度是一个重要的参数,实现精确的温度测量与控制,对提高热处理质量十分重要。温度的测量和控制主要使用测温元件和显示仪表。测温元件主要包括热电偶、热电阻、辐射高温计和光学高温计等。显示仪表主要有毫伏计、电子电位差计等。

热电偶的工作原理
  将两种不同的导体连接成闭合回路,只要两端有温度差,回路中就有电流通过,产生的相应电动势称为热电势,这种现象称为温差效应。热电偶就是根据这一效应测量温度的。

热电偶工作原理如图所示:


  热电势的大小与导体的材料和两端的温度差有关,不同的导体材料产生热电势的大小不同。当导体材料一定时,两端的温度差越大,产生的热电势越大。而且热电势的大小不受导体的长短和直径大小的影响。

热电偶的结构

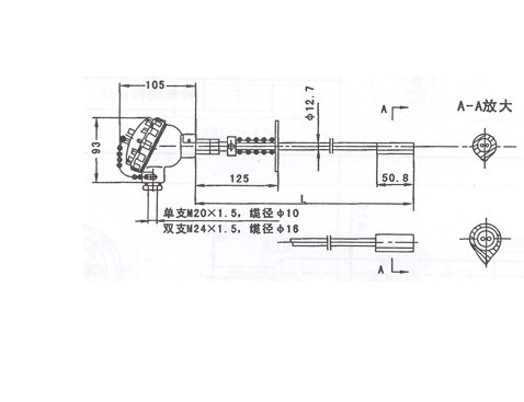
  组成热电偶的两根不同导体A和B称为热电极,这两根导线的一端焊接在一起称为热端或工作端,测温时此端处于被测介质中,另一端称为冷端或自由端,接入二次仪表或电测设备。
热电偶结构图如图所示:

(1)热电极:普通金属热电极的直径一般为0.5-3.2mm,长度有安装条件决定,特别是根据工作端在介质中的插入深度来决定。偶丝的材料根据测量温度的范围而定。
(2)绝缘管:绝缘管用于防止两根电极间短路,其材料根据测温介质和温度的高低而定。常见的有瓷管和高温陶瓷,结构有单孔、双孔和四孔三种。
(3)保护管:为防止热电极受到有害介质的化学侵蚀和外界碰撞,在热电偶外面加装保护管进行保护,常用的有陶瓷管和不锈钢管。
(4)接线盒:用于热电偶和补偿导线的连接和保护,通常用铝铸成。
(5)补偿导线:各种热电偶有各自的补偿导线,这是为了将热电偶的冷端远离热源,使测量更加准确、方便。

热电偶的种类

我国生产的热电偶符合国际IEC标准的有6种,其分度号有S、B、K、E、J、T。常见热电偶的种类及分度号见图

热电偶名称 分度号 热电极材料 测量温度℃ 误差
极性 成分 长期用 短期用
铂铑10-铂 S + 铂90铑10 0-1300 0-1600 I级±1℃
II级±1.5℃
- 铂100
铂铑30-铂6 B + 铂70铑30 0-1600 0-1800 I级±0.25℃
II级±0.5℃
- 铂94铑6
镍铬-镍铝 K + 铬10镍90 900 1200 I级±1.5℃
II级±2.5℃
- 镍97铝3
镍铬-铜镍 E + 镍90铬10 600 800 I级±1.5℃
II级±2.5℃
- 镍44铜56
铁-铜镍 J + 铁100 600 800  
- 铜60镍40
铜-铜镍 T + 铜100 200-400   I级±0.5℃
II级±1℃
- 铜镍

使用热电偶的注意事项

(1)热电偶的工作端和补偿端要避开强磁场和强电场,补偿导线应装入接地的铁管中。
(2)要选择正确反应炉子温度的位置安装。
(3)插入炉膛的深度一般不小于保护管直径的8-10倍
(4)使用时要避免急冷急热,以防保护管破裂。
(5)保持热电偶使用在合格状态下,要定期效验。

上一篇:装配热电阻系列
下一篇:B型热电偶WRR-23